Более 100 000 товаров на каждый день.

г. Новочебоксарск, ул. Винокурова, 64
Время работы: с 09:00 до 20:00.

Аренда торговых площадей
от 250 руб./м2
Удобные подъездные пути, высокая проходимость, самый крупный торговый комплекс в Новочебоксарске!
Получить список площадей
Получичите полный список свободных площадей с ценами!

6 причин арендовать помещение именно здесь


УДОБНОЕ РАСПОЛОЖЕНИЕ. БОЛЕЕ 250 ПАРКОВОЧНЫХ МЕСТ
Все предлагаемые в аренду помещения расположены в Центрах с транспортной доступностью. 
ВЫСОКАЯ ПРОХОДИМОСТЬ
За час в данном месте проходит больше 325 человек.
ПЕРВАЯ ЛИНИЯ
Так же в комплексе находится гипермаркет "Магнит" и за счет этого в данном месте стекаются потоки людей.
4 ОСТАНОВКИ ОБЩЕСТВЕННОГО ТРАНСПОРТА
В наш комлекс легко удобно приехать на любом общественном транспорте. 
САМОЕ ТОРГОВОЕ МЕСТО В НОВОЧЕБОКСАРСКЕ
Ни в одном другом месте нет такого количества торговых точек.
ЦЕНТР ГОРОДА
Новочебоксарский рыночный комплекс находится в активно застраивающемся центре города.

Эти компании находятся рядом


Свободные площади

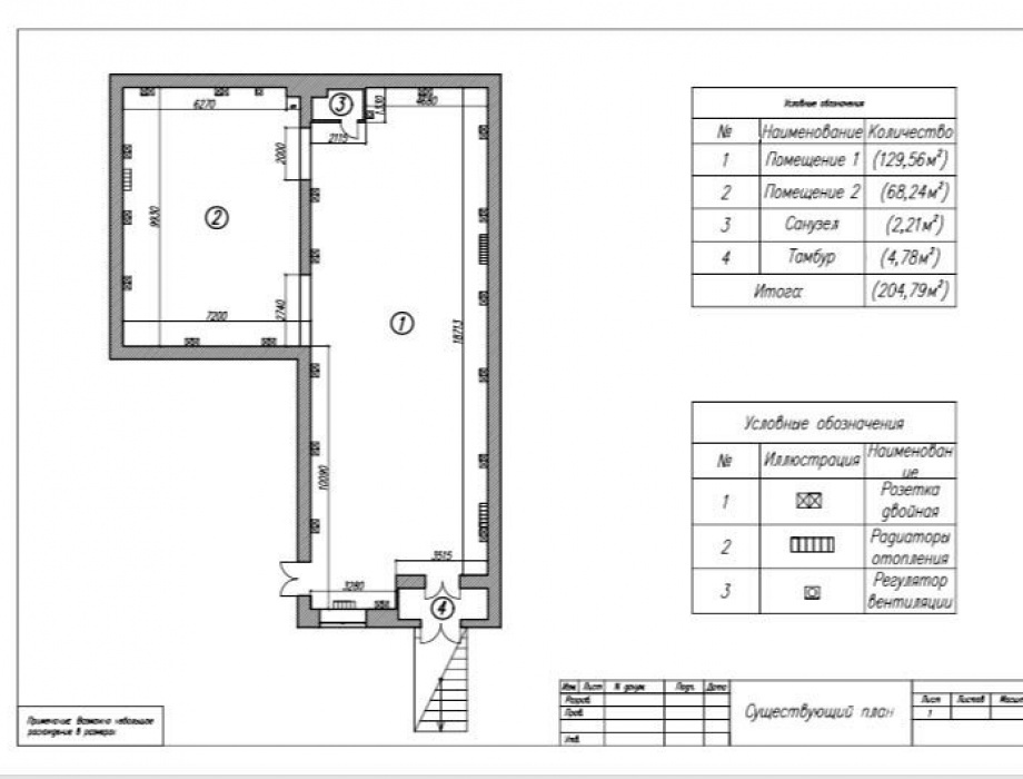
Бытовой блок

ул. Пионерская д. 18
1 этаж, 280 кв. м2 или 140 кв. м2

Первая линия. Входит в Новочебоксарский рыночный комплекс. Бытовое здание. Рядом новый Торговый центр (сдача 1 квартал 2018 г.). Площадь помещений 140 и 280 кв. м2. В каждом помещении отдельный вход и отдельный санузел. Парковочная зона на 100 машиномест напротив входа в помещение. Нулевые затраты на ремонт - помещение новое, в отличном состоянии, готово к эксплуатации, стены покрашены, потолок - армстронг.  Практичное покрытие пола -  керамогранит.

До июня 2018 года специальная цена.

Получить подробности по помещению
Вы получите PDF-файл с ценой, планировкой и фотографиями
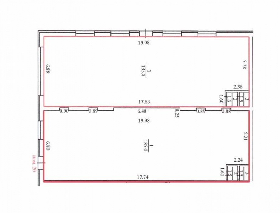
ул. Пионерская д. 18
цоколь, 140 кв. м2

Входит в Новочебоксарыский рыночный комплекс. Бытовое здание. Своя паркова. Вход в помещение напротив парковки. Очень хорошая цена за кв. м2.  Отдельный вход и отдельный санузел. Нулевые затраты на ремонт - помещение новое, в отличном состоянии, готово к эксплуатации, стены покрашены, потолок - армстронг.  Практичное покрытие пола -  керамогранит.

Получить подробности по помещению
Вы получите PDF-файл с ценой, планировкой и фотографиями
ул. Пионерская д.18/1
Универсам  "ТОЧКА".  Сдаются торговые площади - 5, 10,15, 20,30,40,50, 60,70 кв.м.

Универсам "ТОЧКА" входит в Новочебоксарский рыночный комплекс. Открылся в январе 2018г. График работы: с 08-00 до 20-00. (администратор открывает и закрывает  универсам). Площадь помещений от 5 до 70 кв.метров. Вход в поменщение оформлен под Универсам ТОЧКА, имеются отдельные рекламные места для вывески каждого арендатора. Помещение новое. Всё помещение подключено к охранной, пожарной сигнализации, а так же видеофиксации - все подключено на один пульт вневедомственной охраны г.Новочебоксарска (Россгвардия).  Подключён WiFi, уборка вынос мусора каждый день, дворник.​​​​​​​

Получить подробности по помещению
Вы получите PDF-файл с ценой, фото и планировкой свободных помещений


Новочебоксарский рыночный комплекс, г. Новочебоксарск ул. Винокурова, 64.

Политика конфиденциальности
Политика конфиденциальности

Данный сайт уважает Ваше право и соблюдает конфиденциальность при заполнении, передаче и хранении Ваших конфиденциальных сведений.
Размещение заявки на данном сайте означает Ваше согласие на обработку данных и дальнейшей передачи ваших контактных данных нашей компании.
Под персональными данными подразумевается информация, относящаяся к субъекту персональных данных, в частности имя, контактные реквизиты (адрес электронной почты) и иные данные, относимые Федеральным законом от 27 июля 2006 года № 152-ФЗ «О персональных данных» к категории персональных данных.
Целью обработки персональных данных является информирование об оказываемых услугах нашей компании.